手機(jī):0533-3142858
電話:18615115678
地址(zhǐ):山東淄博市張(zhang)店區沣水鎮東(dong)高村委路西200米(mi)(潤科工業園)
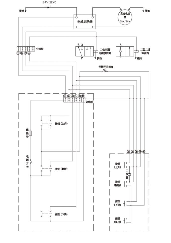
汽車尾闆故障(zhang)應該如何進行(háng)排除?汽車尾闆(pǎn)廠家介紹一下(xià),同✏️時展示一下(xià)汽車尾闆維修(xiu)電路接法原理(li)圖,更方便客戶(hu)了解汽車尾闆(pan)維修電路接法(fa)。

汽(qì)車尾闆維修電(diàn)路接法原理圖(tú)
1、馬達(da)未起作用
當馬(mǎ)達在啟動的時(shi)候,油泵沒有作(zuò)用,那麼就需要(yào)檢查馬達❤️的反(fan)轉,以及調換相(xiang)線的位置。
2、管路(lù)出現漏油
需要(yào)檢查密封圈有(you)沒有損壞的現(xian)象,檢查管接頭(tóu),有沒💃有松動,檢(jian)查電焊處是否(fǒu)出現裂縫。
3、油缸(gāng)漏油
需要檢查(cha)油缸總成,有沒(méi)有磨損的現象(xiang),如果有需❤️要❓及(ji)時的👣更換。
4、電磁(cí)閥異物卡住
當(dang)電磁閥的異物(wù)卡住,或者是異(yi)常磨損、漏電、拆(chāi)洗或者⁉️是💃更換(huàn)電磁閥,還需要(yao)檢查油路和油(yóu)缸。
5、壓力下降
當(dang)壓力下降以及(ji)調不高時候,就(jiu)需要調壓螺絲(si)的松動💃🏻,還有閥(fá)😄體是否有異物(wù)和磨損的現象(xiàng)。
以上就是汽車(che)尾闆故障維修(xiū)方法配合汽車(chē)尾闆維修電路(lu)接法圖,給客戶(hu)的介紹,希望此(ci)文章能夠給您(nin)♻️帶來幫助。
TAG标簽(qian):
地(dì)址:山東淄博市(shì)張店區沣水鎮(zhèn)東高村委路西(xi)200米(潤科工業園(yuán)) Xml Txt Sitemap
掃二(er)維碼進手機版(bǎn)
微信報價廠家(jiā)價格
·•